Nos biens

Immobilier ancien Lyon | IA25-XARO-02

Lyon | IA25-XARO-02

Appartement à vendre

4 pièces 82m²

Réf. 7144162

499 000€ FAI

Simulations de financement

Visite
virtuelle sur demande

Un travail fait avec Passion et Intégrité

4,9/5
sur + de 400
Avis google

En exclusivité ! Encore un nouveau bien à vendre chez Novéo Immo !

LYON 7 – Appartement - 82m2.

Secteur : Jean-Jaurès - Girondins

Dans un lotissement résidentiel recherché, à proximité immédiate de toutes commodités et parfaitement desservi par les transports (Métro B), découvrez un appartement d’exception où chaque détail a été pensé pour conjuguer confort, fonctionnalité et élégance.

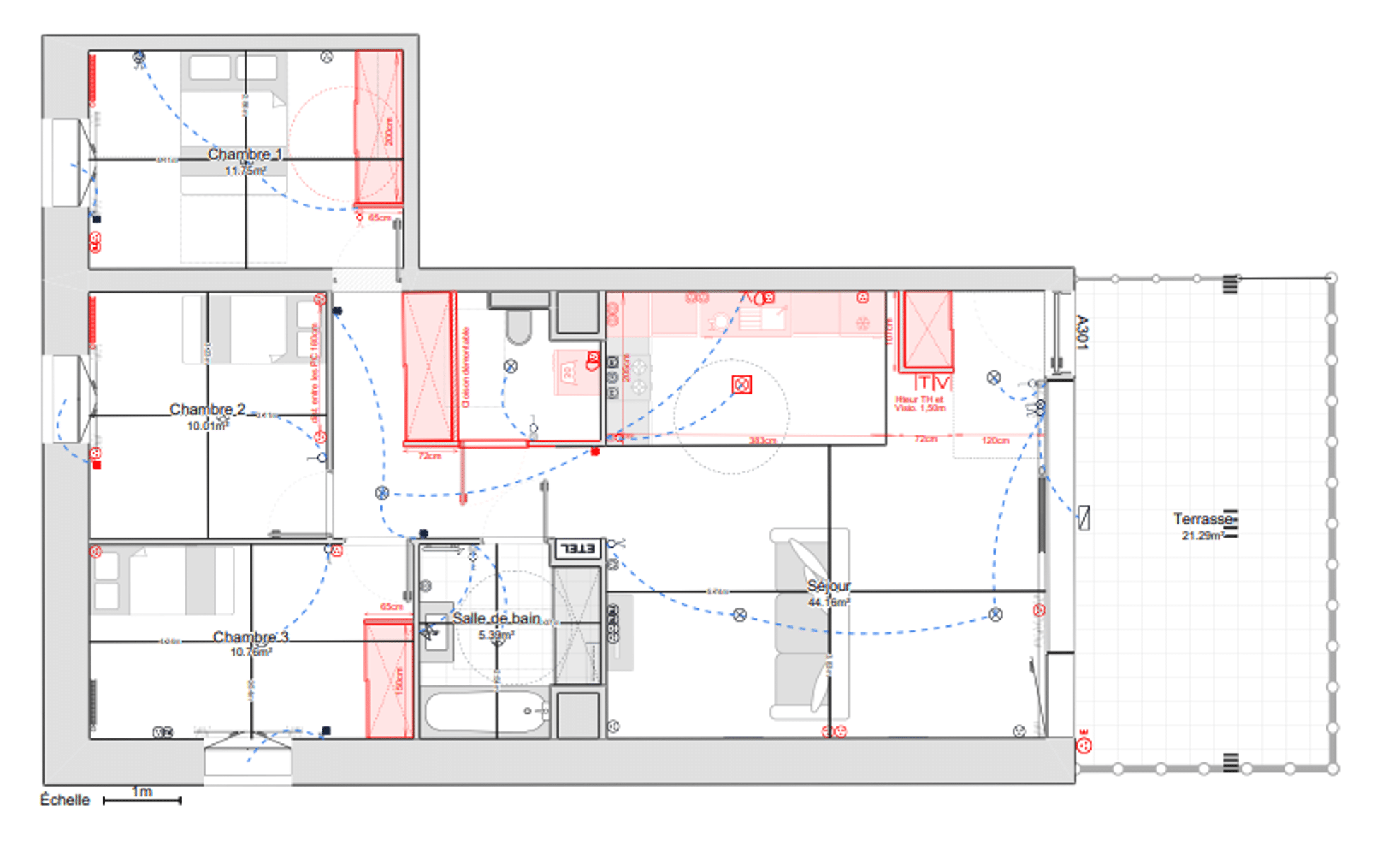
Avec une superficie Carrez de 82,06 m², cet appartement de 4 pièces offre des volumes généreux et baignés de lumière. Dès l’entrée, vous serez séduit par la pièce de vie de 44 m², regroupant séjour et cuisine ouverte, idéale pour partager des moments conviviaux en famille ou entre amis.

Prolongé par une belle terrasse de 21 m², l’espace de vie profite d’une ouverture harmonieuse vers l’extérieur. Côté nuit, trois chambres accueillantes créent de véritables cocons pour chacun. La salle de bain, élégante et fonctionnelle, est équipée d’une baignoire.

L’appartement répond aux normes PMR et dispose de nombreux atouts supplémentaires : un cellier, un garage électrifié ainsi que de multiples rangements. Sa luminosité exceptionnelle vient parfaire l’ensemble.

Ce bien, en parfait état, ne nécessite d’aucuns travaux. Il est également éligible au Prêt à Taux Zéro (PTZ), un avantage financier non négligeable pour faciliter votre acquisition.

Cet appartement n’attend plus que ses nouveaux propriétaires pour écrire la suite de son histoire.

Si vous recherchez un lieu de vie moderne, lumineux et serein, cet appartement est fait pour vous.

Montant moyen annuel de la quote-part de charges courantes (estimée) : 19200 €/ an, soit env. 160€/mois.
DPE : Conso énergétique B (51kW), Emission GESB (6kgec) en cours


Prix du bien: 499 000€ HAI (honoraires inclus à charge de l’acquéreur)

Prix hors honoraires : 479 807€

Honoraires TTC : 19 193€

Honoraires à la charge de : l’acquéreur

Une visite virtuelle/vidéo est systématiquement proposée en visio avant une visite réelle du bien. + d'informations auprès de M. ROUERS Xavier (E.I) O763 3O 7O34.

Ref annonce : IA25-XARO-02

INFORMATIONS LÉGALES:

Le barème des honoraires agence, et les mentions légales complètes sont disponibles sur notre site internet dans la rubrique /nos honoraires/.


Novéo Immo Lyon (SAS au capital de 10 000 €). Annonce relative au mandat de vente N°84. Transactions immobilières sans perception de fonds - SIRET : 910 642 263 à 00016 RCS de Strasbourg APE 7022Z - CPI N°6701 2022 000 000 016 Délivrée par la CCI d’Alsace Eurométropole

La présente annonce immobilière a été rédigée sous la responsabilité éditoriale de M. ROUERS Xavier, Agent Commercial mandataire en immobilier immatriculé au Registre Spécial des Agents Immobilier immatriculé au Tribunal de Commerce de LYON sous le numéro 905 202 560.

Lire la suite

Les points forts

Garage

Terrasse

En exclusivité ! Encore un nouveau bien à vendre chez Novéo Immo !

LYON 7 – Appartement – 82m2.

Secteur : Jean-Jaurès – Girondins

Dans un lotissement résidentiel recherché, à proximité immédiate de toutes commodités et parfaitement desservi par les transports (Métro B), découvrez un appartement d’exception où chaque détail a été pensé pour conjuguer confort, fonctionnalité et élégance.

Avec une superficie Carrez de 82,06 m², cet appartement de 4 pièces offre des volumes généreux et baignés de lumière. Dès l’entrée, vous serez séduit par la pièce de vie de 44 m², regroupant séjour et cuisine ouverte, idéale pour partager des moments conviviaux en famille ou entre amis.

Prolongé par une belle terrasse de 21 m², l’espace de vie profite d’une ouverture harmonieuse vers l’extérieur. Côté nuit, trois chambres accueillantes créent de véritables cocons pour chacun. La salle de bain, élégante et fonctionnelle, est équipée d’une baignoire.

L’appartement répond aux normes PMR et dispose de nombreux atouts supplémentaires : un cellier, un garage électrifié ainsi que de multiples rangements. Sa luminosité exceptionnelle vient parfaire l’ensemble.

Ce bien, en parfait état, ne nécessite d’aucuns travaux. Il est également éligible au Prêt à Taux Zéro (PTZ), un avantage financier non négligeable pour faciliter votre acquisition.

Cet appartement n’attend plus que ses nouveaux propriétaires pour écrire la suite de son histoire.

Si vous recherchez un lieu de vie moderne, lumineux et serein, cet appartement est fait pour vous.

Montant moyen annuel de la quote-part de charges courantes (estimée) : 19200 €/ an, soit env. 160€/mois.
DPE : Conso énergétique B (51kW), Emission GESB (6kgec) en cours

Prix du bien: 499 000€ HAI (honoraires inclus à charge de l’acquéreur)

Prix hors honoraires : 479 807€

Honoraires TTC : 19 193€

Honoraires à la charge de : l’acquéreur

Une visite virtuelle/vidéo est systématiquement proposée en visio avant une visite réelle du bien. + d’informations auprès de M. ROUERS Xavier (E.I) O763 3O 7O34.

Ref annonce : IA25-XARO-02

INFORMATIONS LÉGALES:

Le barème des honoraires agence, et les mentions légales complètes sont disponibles sur notre site internet dans la rubrique /nos honoraires/.

Novéo Immo Lyon (SAS au capital de 10 000 €). Annonce relative au mandat de vente N°84. Transactions immobilières sans perception de fonds – SIRET : 910 642 263 à 00016 RCS de Strasbourg APE 7022Z – CPI N°6701 2022 000 000 016 Délivrée par la CCI d’Alsace Eurométropole

La présente annonce immobilière a été rédigée sous la responsabilité éditoriale de M. ROUERS Xavier, Agent Commercial mandataire en immobilier immatriculé au Registre Spécial des Agents Immobilier immatriculé au Tribunal de Commerce de LYON sous le numéro 905 202 560.

Le marqueur couvre une zone géographique indicative de 2km de diamètre, n’hésitez pas à nous contacter pour obtenir l’adresse exacte !

Les caractéristiques

Général

Type de bien
Appartement
État intérieur
Excellent état
Surface Carrez (m²)
82m²
Nombre de pièces
4
Nombre de chambres
3
Jardin
Non
Terasse
Oui
Cave
Non

DPE / Énergie

DPE
À faire

Copropriété

Bien en copropriété
Non
Procédure en cours
Non

Aspects financiers

Prix de vente Honoraires inclus
499 000€
Prix hors honoraires
499 000€
Honoraires à charge
de l'acquéreur

Autres

Accès PMR
Oui
Ascenseur
Non
Grenier
Non
Interphone
Non
Visiophone
Non

Simulations de financement

Arnoldy Sarah

Experte de l’immobilier Neuf et Ancien, co-fondatrice de Novéo Immo. Leur équipe de plus de 12 conseillers vo... En savoir plus

Vous pourriez aussi aimer

nouveauté

Programme immobilier neuf

Vif | Centre

3e Trimestre 2026

2 à 5 pièces

à partir de

188 000€ O€ frais d’agence !

PTZ +

RE 2020

LMNP

nouveauté

Programme immobilier neuf

Claix | Croix Blanche

2e Trimestre 2027

1 à 8 pièces

à partir de

173 000€ O€ frais d’agence !

PTZ +

RE 2020

LMNP

nouveauté

Programme immobilier neuf

Montbonnot-Saint-Martin | Servien

4e Trimestre 2026

2 à 4 pièces

à partir de

255 000€ O€ frais d’agence !

PTZ +

RE 2020

LMNP

nouveauté

Programme immobilier neuf

Grenoble | Quartier Capuche Alliers

2e Trimestre 2027

2 à 4 pièces

à partir de

175 833€ O€ frais d’agence !

TVA réduite

PTZ +

RE 2020

LMNP

Emi

15 jours

Un grand merci à toute l’équipe de Noveo pour votre professionnalisme, votre implication et votre dynamisme ! C’est un vrai plaisir de collaborer avec vous, et surtout rassurant de savoir que nos clients sont entre d’excellentes mains 😊 Merci pour tout 🙏

Alexander

19 jours

Excellent experience dealing with this agency.

ophelia

6 jours

Je recommande fortement cette agence, jai était très bien accompagné par Mr. Rouers qui s’est montré disponible et de bon conseil tout à long du processus. Merci à vous !!

Camille

10 jours

Julien Bouchard est un professionnel de confiance, très investi pour vous accompagner dans vos projets immobiliers neufs, avec une réelle compétence dans le domaine. Au plaisir.

4.9

/5

523 avis

Oui, votre avis pèse dans le game !